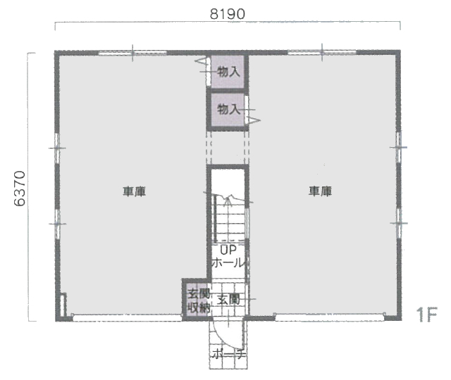
ガレージハウス・2台分<2DK>(全方向敷地対応)
コンパクトでも独立して車2台収納可能な
[ビルトインガレージハウス]
1F面積:52.17㎡(15.78坪),
2F面積:52.17㎡(15.78坪)
オーナー様向け商品ラインナップ
マイホーム向け商品ラインナップ
高齢者向け商品ラインナップ
新・戸建賃貸住宅 St.Mariage 設備機器・構造素材
デザイナーズ CHERILA MAISON 設備機器・構造素材
全国施工事例
見積・ご相談・お問い合せ
コンパクトでも独立して車2台収納可能な
[ビルトインガレージハウス]
1F面積:52.17㎡(15.78坪),
2F面積:52.17㎡(15.78坪)